Patricia Cox
Refine Search

1100 Gregory Landing Drive, North Augusta, SC 29860

$380,000
  • 1100 Gregory Landing Drive, North Augusta, SC 29860 Main Photo

48 Total Photos [Click to View All]

Active
BEDS5 BATHS3 full SQUARE FEET2,623 MLS#553522
STATUSActive PROPERTY TYPEResidential - Single Family SUBDIVISIONGregory Landing

Property Description

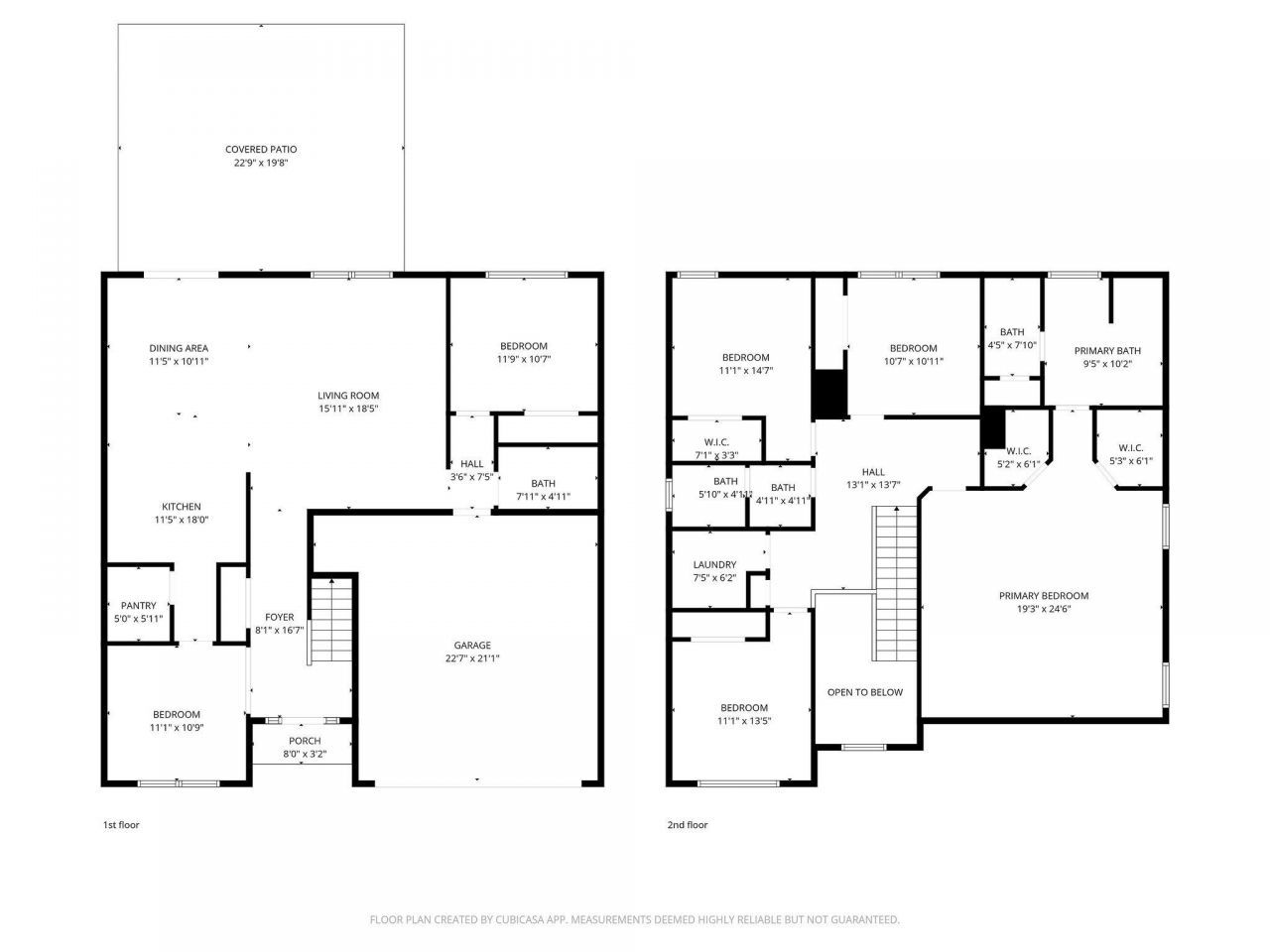
Welcome to 1100 Gregory Landing Drive in North Augusta! A beautifully designed home offering space, flexibility, and comfort. This spacious residence features five generously sized bedrooms, and three full bathrooms. In addition, a main floor versatile flex space offers endless possibilities; perfect for a home office, playroom, media room, gym, or even a sixth bedroom.From the moment you step inside, you'll appreciate the thoughtful layout that blends functionality with everyday comfort. The open living areas create an inviting atmosphere ideal for entertaining or relaxing at home, while the well appointed kitchen serves as the heart of the home with ample counter space and storage, to include a large walk in pantry.The primary suite offers a peaceful retreat with plenty of space to unwind. With double walk in closets and a ensuite made for two. While each additional bedroom is comfortably sized, ensuring everyone has their own private haven.Step outside to enjoy a generously sized backyard designed for both relaxation and entertaining. The oversized patio provides abundant space for outdoor dining and gatherings, while the beautiful pergola adds charm and the perfect shaded retreat.If you've been searching for a home with flexible living spaces, and an inviting outdoor setup, you've got to check out 1100 Gregory Landing Drive! Schedule your private tour today.(Disclaimer: Some photos in this listing have been virtually staged to showcase the property's potential. Home will be shown unfurnished.)

1100 Gregory Landing Drive | MLS# 553522

This single family home located at 1100 Gregory Landing Drive, North Augusta, SC 29860 is currently listed for sale with an asking price of $380,000. This property was built in 2019 and has 5 bedrooms and 3 full baths with 2623 sq. ft. Gregory Landing Drive is located in the Gregory Landing subdivision. Search Gregory Landing real estate on pcox.century21thomas.com today.

Property Features

Property Type: Residential - Single Family
Cooling: Ceiling Fan(s), Central Air
Fenced: Yes
Garage: 2
Heating: Electric, Heat Pump
Home Style: 2-Story
Lot Size: 0.24 Acres
Roof Type: Composition
Stories: 2.0
Year Built: 2019

Amenities

Blinds
Eat-in Kitchen
Entrance Foyer
In-Law Floorplan
Pantry
Recently Painted
Smoke Detector(s)
Walk-In Closet(s)
Washer Hookup
Electric Dryer Hookup

Feature Descriptions

Appliances: Built-In Microwave, Dishwasher, Disposal, Electric Range, Electric Water Heater, Refrigerator
Community Features: Sidewalks, Street Lights
Days on Site: 29
Exterior: Stone, Vinyl Siding
Fencimg: Fenced, Privacy
Flooring: Carpet, Luxury Vinyl, Vinyl
HOA Fee: $300/ Annually
Lot: Landscaped, Sprinklers In Front, Sprinklers In Rear
Lot Dimensions: 65x160
Parcel#: 1060007001000
Parking: Concrete, Garage, Garage Door Opener
Parking Notes: Concrete, Garage, Garage Door Opener
Patio/Porch: Covered, Front Porch, Patio, See Remarks
Sewer: Public Sewer
Water: Public

Room Sizes

Bonus Room: 11 x 11 Level - Main
Bedroom 3: 11 x 11 Level - Upper
Bedroom 5: 12 x 11 Level - Main
Family Room: 16 x 19 Level - Main
Kitchen: 11 x 13 Level - Main
Dining Room: 12 x 11 Level - Main
Bedroom 4: 11 x 11 Level - Upper
Bedroom 2: 11 x 11 Level - Upper
Primary Bedroom: 19 x 18 Level - Upper

Local Schools

High School: Strom Thurmond
Middle School: Merriwether
Elementary School: Merriwether

Listed By / Shown By

Listed By

Agency Name: Keller Williams Realty Augusta

Shown By

Agent Name: Patricia Cox
Agent Phone: (704) 280-0983
Agency Title: CENTURY 21 Thomas

IDX logo

Estimate Your Payment

Estimated Payment

$ 956.55 per month $845.72 Principal & Interest $0.00 Property Tax (data not provided by mls) $110.83 Homeowner's Insurance

Change Payment Information

%
years/fixed
yearly
yearly (est.)
(Payments are an estimate and may vary by lender)

Login to My Homefinder

Pixel